Previous | Next | Discuss :: Free Advice (General Feng Shui)


Topic: Master Bedroom, 2 Attachments
Conf: Discuss :: Free Advice (General Feng Shui), Msg: 11315
From: Anon (Hidden from Privacy)
Date: 6/5/2002 06:10 AM

Dear Alan,

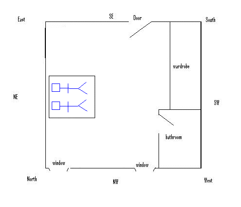
Yes, based on your attachment, the layout is the most favourable (nw-bedplacement-1.gif) based on Shapes and Form Feng Shui.

An alternative file: nw-bedplacement-2.gif shows the next best alternative (less the placement of the dressing table - as it is a poison arrow aimed partially at the bed. The dressing table should be placed further away or tilted away (if it does not have a dressing mirror on it).

Warmest Regards,
Cecil

On 5/30/2002 10:59:00 PM, Alan Yap Ching Chuen wrote:
>Dear Cecil
>
>I hope you can give me some
>advice on my master bedroom
>arrangement. My gua no. is 6
>and my wife is 9, I know my
>good directions are bad for my
>wife but what to do...I
>married her. So can you advice
>me on my room layout whether
>is good or bad based on me and
>advice some remedies for my
>wife. My house is facing NW
>and the bed is also facing NW.
>I have attached a layout plan
>of my room.
>
>Thanks a lot.
>
>Alan


Click to open!nw-bedplacement-2.gif
2nd best alternative (7,194 bytes)

Click to open!nw-bedplacement-1.gif
Best placment (8,113 bytes)

Copyright 1996-onwards Geomancy.Net, Cecil & Robert Lee. All Rights Reserved.

International Copyright & Intellectual Property Rights Notice
All messages posted TO THIS SITE which includes this forum and other contents made accessable by us to the public cannot be copied; reproduced; recompiled; stored in a retrieval system; or transmitted, in any form or by any means; electronic; mechanical; photocopying; recording; or otherwise. - Learn more

Please kindly contact us at support@geomancy.net. if you should encounter any breach of Copyright and Intellectual Property rights. Thank you in advance!

 

 

Back to Feng Shui at Geomancy.Net

 [ Site Search | Forum Search | Picture Search | Site Map ]

 

Help Desk: (65) 9785-3171

 

 

 

Highlights

Extend your learning with Master Cecil Lee's Applied Feng Shui Made Easy Book.

" Real People, Real Life, Real Situation " - Learn from thousands of actual case studies at our popular Free Advice Forum.

" Worry-Free Professional Feng Shui Services " - from the authors of Geomancy.Net

[ Award & Accolades ]
 

Site Navigation

Home
   Feng Shui Freebies
   Feng Shui Resources
     Fun with Feng Shui
     Major FS Theories
     Feng Shui Articles
     Feng Shui Advice
     FS Reference
     Slide Show
     Calendar of Events
     Educational Polls
     Site Review
     Yearly Forecast
     Chinese Horoscope
     Popular Topic
   Picture Resources
   Chinese Horoscope
   Personalised Reports
   e-Bookstore
   Feng Shui Courses
   Products & Services
   Consultation Services
   Shop @ Geomancy
   Students Services
   Events @ Geomancy
   Webmaster
   FAQ / Help
   About Us
   Contact Us
   Members Area
   Ask Expert Forum
   Search Website
   Site Tools
   Others Areas
   Live Chat
   Recommend Us
   Site Map